top of page
Wohnhaus mit mehreren Wohnungen
Zusammenfassung
Vor Ihnen steht ein Wohngebäude, das aus drei oberirdischen Stockwerken und einer Tiefgarage besteht. In dem Gebäude befinden sich Zwei- und Dreizimmerwohnungen, jede mit Zugang zu einem Balkon.
Standort
Slowakei
Fertigstellungsjahr
2019
Kunde
Privatperson
Nutzfläche
1344 m²
Technische Zeichnungen:
Wir präsentieren Ihnen die Zeichnungen:
• Parkplatzplan M1:50
• Plan des 1. Stockwerks M1:50
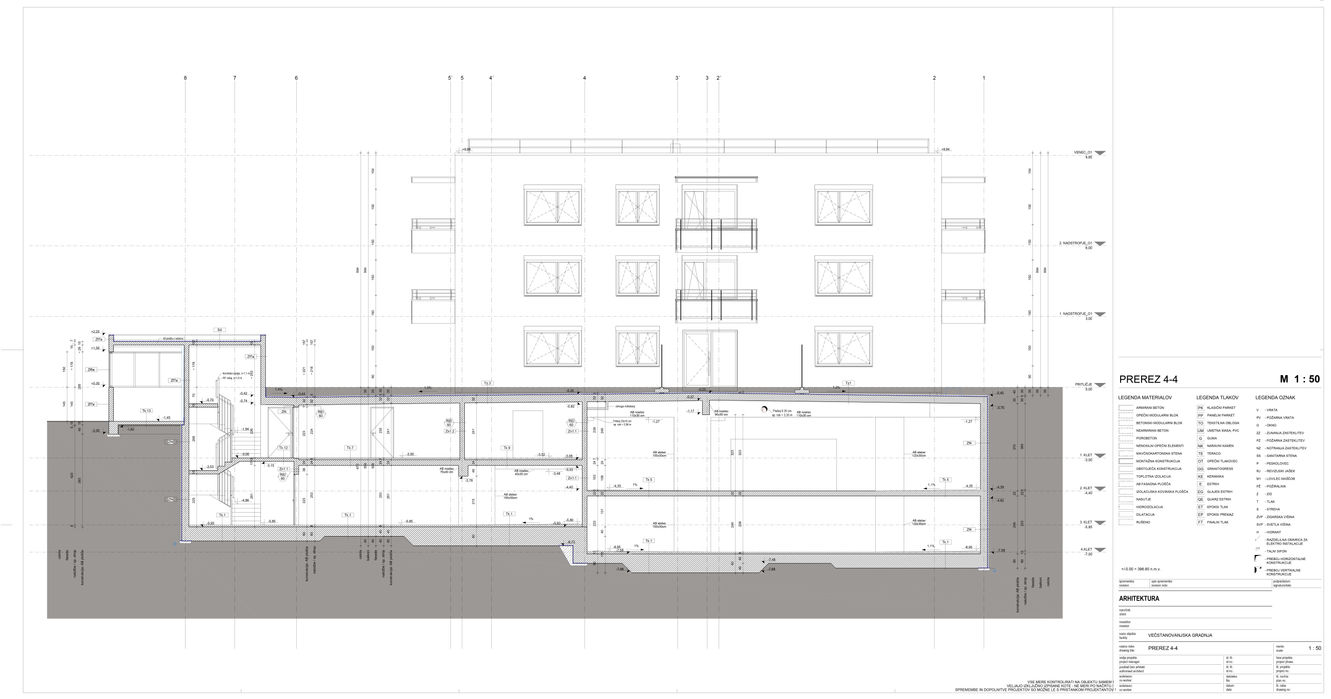
Schnitte vermitteln stets ein Verständnis für das Bauvolumen. Sie sind ein wichtiger Bestandteil der Planung.
• Schnitt 3-3 M1:50
• Schnitt 4-4 M1:50
Andere Projekte:
bottom of page





























