Umbau einer Wohnwohnung in ein Büro
Zusammenfassung
Wir präsentieren Ihnen ein Projekt zur Umwandlung einer Wohnwohnung in Büroräume. Ziel dieses Projekts war es, optimale Arbeitsbedingungen für die Mitarbeiter zu schaffen und den Raum effektiv zu nutzen. Bei der Planung wurden Aspekte wie die Aufteilung der Bereiche, die Anzahl der Arbeitsplätze, Beleuchtung (natürlich und künstlich), technische Ausrüstung, Anordnung der Steckdosen, Internet- und Kommunikationszugang, sanitäre Bedingungen und ein Interieurdesign berücksichtigt, das den spezifischen Anforderungen des Bürobetriebs entspricht.
Standort
Ukraine, Kiew
Fertigstellungsjahr
2019
Kunde
Privatperson
Nutzfläche
89,37 m²
Technische Zeichnungen:
Ein korrekter Ansatz bei Planung und Umsetzung sorgt immer für ein klares Verständnis der Aufgabe sowohl für das Bauteam als auch für den Kunden:
• Detaillierter Plan der tatsächlichen Raumgrößen M1:50
• Plan für den Abbau von Trennwänden M1:50
• Plan für den Einbau neuer Trennwände M1:50
• Schema der Aluminiumtrennwand, Block 01 M1:25
Es ist sehr wichtig, die Raumnutzung immer zu verstehen, noch wichtiger ist jedoch das Arbeitsvolumen:
• Möblierungsplan M1:50
• Fliesenverlegeplan für den Boden M1:50
• Wandverkleidungsplan M1:50
• Türplatzierungsplan M1:50
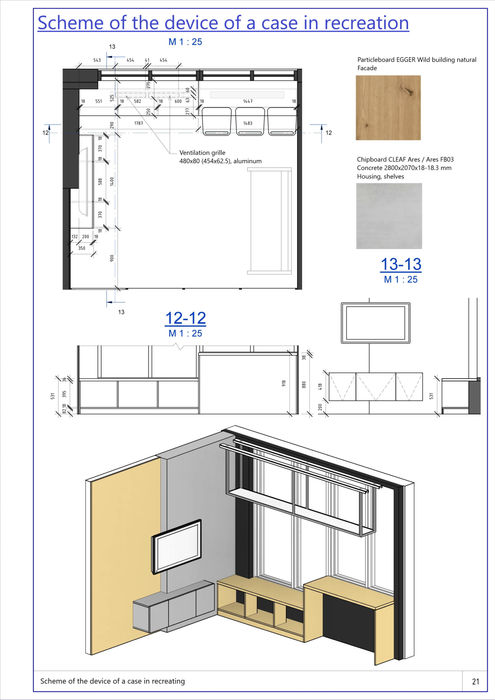
• Dekorationsplan für den Erholungsraum M1:50
Ein schematisches Bild der Anordnung von Beleuchtung und Elektroinstallation hilft, die vorläufigen Kosten für die Elektroinstallationsarbeiten zu schätzen:
• Beleuchtungsanordnungsplan M1:50
• Elektroanordnungsplan M1:50
Dank der Pläne und schematischen Darstellungen der Möbel können wir die Funktionalität des Raums bewerten:







































































































