Hotel mit Gewerbeflächen
Zusammenfassung
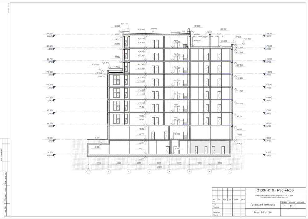
Der Hotelkomplex besteht aus acht Stockwerken, sieben davon sind für komfortable Zimmer bestimmt. Eine praktisch gelegene Parkgarage ist per Aufzug direkt mit den Zimmern verbunden, was es den Gästen ermöglicht, ihre Zimmer zu erreichen, ohne auf die Straße gehen zu müssen. Im Erdgeschoss befinden sich Gewerberäume, einschließlich Verkaufsräumen, die zusätzlichen Komfort für die Gäste bieten. Das achte Stockwerk beinhaltet eine Terrasse, die als Restaurant oder Erholungsbereich genutzt werden kann und bietet atemberaubende Aussichten sowie Raum für Entspannung oder Veranstaltungen. Gelegen in einem prestigeträchtigen Viertel, verkörpert dieser Hotelkomplex Luxus und Komfort, erfüllt alle Anforderungen moderner Erholung.
Standort
Ukraine
Fertigstellungsjahr
2022
Kunde
Privatperson
Wohnfläche
3101,79 m²
Technische Zeichnungen:
Machen Sie sich näher mit diesem Projekt vertraut: Die vorgelegten Zeichnungen enthalten wichtige Informationen über die Planung und die notwendigen Berechnungen für den Kunden.













































